「わたしの句読点2〈食いろいろ〉」展開催までの準備の様子を紹介する「展覧会開催の舞台裏」。その2では、博物館の学芸員たちによる展示作業の様子と、開催前日の5月18日(金)に行われた内覧会の様子をお伝えします!
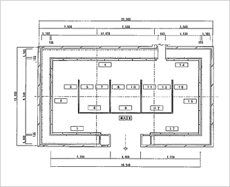
展覧会の詳細が決定すると、内容に合わせて展示のレイアウトを決め、展示室の図面を作成します。本展覧会は171枚もの作品が並ぶため、壁の仕切りをどのようにするかや、作品をどのように並べていくかなど、展示業者の方と担当学芸員とで打ち合わせを重ね、事前準備を行いました。
幾度となく行われた打ち合わせの末に決定した、展示位置を記した図面。展示室の間取りから、壁面のサイズまでが細かく書き込まれています。展示作業の際には、これらを壁面に貼って展示の目安とし、図面の指示に合わせ、展示予定の場所へ事前に作品が並べられていました。



実際の展示作業に取り掛かる前に、実行委員長の和田誠さんや南伸坊さんを交え、展示業者の方たちと最終調整を行います。作品や解説が見やすい高さを、実際に作品を見ながら相談。数カ所の高さを見比べて検討した結果、解説が見づらくならないよう、今回は作品の上部を175cmと、少し高めの位置に設定し、解説は作品の下部から3cm下がった位置に掲示することになりました。

175cmの位置に赤い光の線を映し出し、止め具を打つ位置に印を付けてから、止め具を壁面に打ち込んでいきます。作品がきれいに並ぶように、1点1点丁寧に掲示。高さが合わない場合は、額の紐の長さを調節します。
手分けをして展示作業に取り掛かる学芸員たちは、クギや止め具など、打ち込みはお手のモノ!?





この工程を2日間に分けて作業。「わたしの句読点2〈食いろいろ〉」展の展示が完成しました!
展覧会開始の前日には、マスコミや関係者に向けた内覧会を実施。その内覧会の後には、記者会見も行われました。
展示室を訪れた方々は、作品と作品解説を見比べながら、1点1点をじっくりと鑑賞されていました。




記者会見には、新聞社や通信社、雑誌社の記者の方々が参加。展覧会についての概要説明を受け、質疑応答が行われました。

安西水丸さんTIS理事長
「食」というテーマに対しては、イラストレーターそれぞれで、いろいろな捉え方がありました。非常に楽しくていい展覧会になるのではないでしょうか。この展覧会を通して、TISやイラストレーションのことを、もっとよく知ってもらえたらうれしく思います。

和田誠さん「わたしの句読点2」実行委員長
TIS会員のほとんどが参加してくれました。図録の編集は大変でしたが、たばこと塩の博物館さんのご協力もあり、参加人数の割には楽をさせてもらったと思います。「わたしの句読点」というのはいい言葉です。どんどん続けていきたいですね。

南伸坊さん「わたしの句読点2」実行委員
わたしは、自分の好きな食べ物を絵にしましたが、参加したイラストレーターたちは、それぞれのテーマで「食」を絵にしていました。ぜひ、それらを楽しんでいただけたらと思います。

あずみ虫さん「わたしの句読点2」実行委員
たくさんのイラストレーターたちのいろいろな作品が展示されています。幸せな気分になれるいい展覧会だと思います。
- 準備を終えて――担当学芸員:鎮目良文
- 一人の人物や歴史に焦点を当てる普段の展覧会とは違い、171名ものイラストレーターさんが出品されているので、来館者の皆さんには、いろいろな楽しみ方をしていただけたらうれしいです。展示されているイラストレーションを見て、「この絵が好き」と思ったら、そのイラストレーターさんの作品を追いかけてみてもいいかもしれませんね。書籍などの挿絵やデザインを手がけている、有名な方々の作品も多く展示されています。ぜひ、博物館に足を運んでいただき、実際のイラストレーションをご覧ください。













